×




































23 690 000 р. (144 187 р./м2)
Характеристика объекта
Район
Центральный
Этажей
2
Площадь
164.3/0/0 м2
Участок
7.00 сот
Материал стен
Кирпич
Дополнительно
Водопровод, Канализация, Электроснабжение, Газопровод
На карте
Код объекта: 1859382.
Жить на природе в собственном доме в непосредственной близости от центра города - это ваша мечта? Компания МИАРД Владис готова воплотить ее в реальность!
Жилой дом в СНТ "Иртыш-1" - это ваш шанс комфортной загородной жизни. Расположение СНТ уже оценили десятки счастливых домовладельцев - отличная дорога, 20 минут от центра города, тихое место на достаточном расстоянии от дороги, всего 100 домов в СНТ. Поблизости р. Иртыш. Остановка общественного транспорта и магазин в пяти минутах ходьбы от дома. Въезд на территорию СНТ через шлагбаум.
Построен из кирпича, фундамент ленточный. Крыша - металлическая черепица. По периметру всего дома - теплый пол (водяной). Ремонт выполнен с использованием современных качественных материалов.
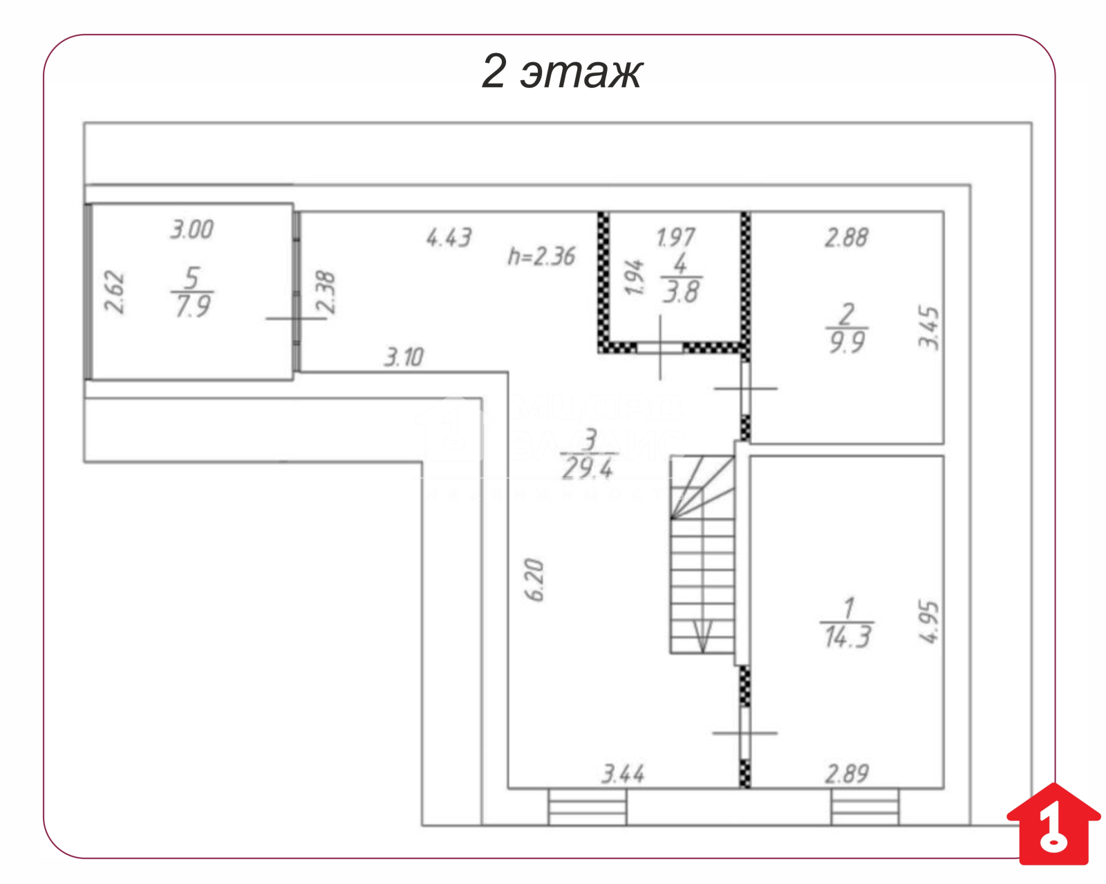
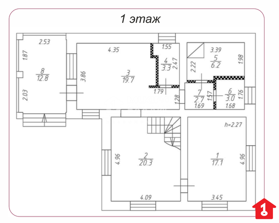
Функциональная планировка: первый этаж – входная группа, просторная кухня, гостиная, спальня, санузел, техническая комната; второй этаж – спальня, большая гардеробная, спальня с закрытой террасой, санузел.
Коммуникации – газ (газовое отопление, 2-х контурный котел ITALTHERM), резервный электрический котел ТепорТех, вода централизованная (городская) и на участке проведена вода для полива (СНТ). Септик с переливом 5 колец. Заведен интернет (оптоволокно). Видеонаблюдение по периметру всего участка. Установлены кондиционеры. Водонагреватель электрический дополнительно.
Территория вокруг дома облагорожена: ландшафтный дизайн участка, освещение, высажено множество хвойный и других растений, газон. Построены беседка и летняя веранда.
Бонус для покупателя - все наполнение дома, в том числе и бытовая техника остается новым собственникам!
Документы прошли юридическую экспертизу! Готовы ответить на все интересующие вас вопросы и оперативно показать! Звоните!

Зинаида Валерьевна
(специалист по недвижимости)
Офис продаж «На Гагарина» ул. Гагарина, 14, оф. 402
На интересующие Вас вопросы
по данному объекту звоните
по телефону:
по данному объекту звоните
по телефону:
+7 (3812) 58-00-00, доб. 149
+7 (965) 870-02-77
+7 (965) 870-02-77
Отзывы о работе специалиста
Городской житель
12.09.2025
Дорогая Зинаида! От всей души хочу сказать Вам огромное спасибо! Без Вас я бы точно не справилась с покупкой квартиры моей мечты. Вы не просто помогли с документами, а по-настоящему прониклись моей ситуацией. Теперь у меня есть квартира в прекрасном доме в потрясающе красивом месте. Я счастлива!!! Спасибо за Ваше терпение и внимание, а также высочайший профессионализм! Ваша поддержка и советы были просто бесценны!
#отзывыдубльгис
Ипотечный калькулятор
Рассчитайте ипотеку для этого объекта


